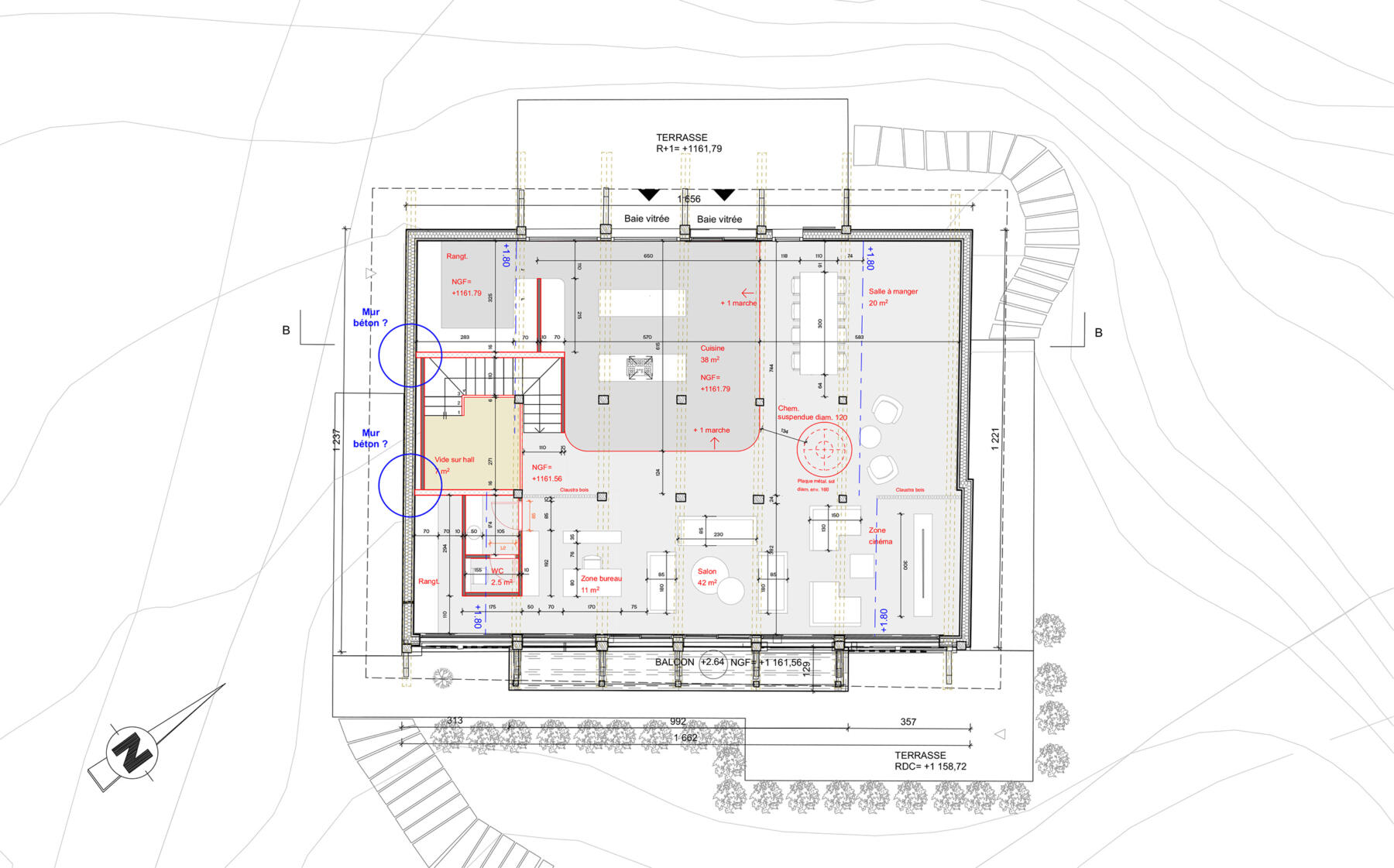
COMBLOUX
Plans d’exécution et aménagements intérieurs pour la construction d’un chalet
Réalisé en 2023 à Megève (FR)







Pour le compte d’une société immobilière
Collaboration avec Ypsum (direction des travaux), permis par Arcode
Crédit images @Archek design

